Skip to main content
Skip to navigation
Accessibility settings
RV Envy
Classes
Search
Inventory
Compare
Chat
Dashboard
2021 Challenger 35MQ Class A for sale | RV Envy
Home
Class A motorhomes
Thor Motor Coach
Challenger
35MQ
Thor Motor Coach Challenger 35MQ
2024
2022
2021
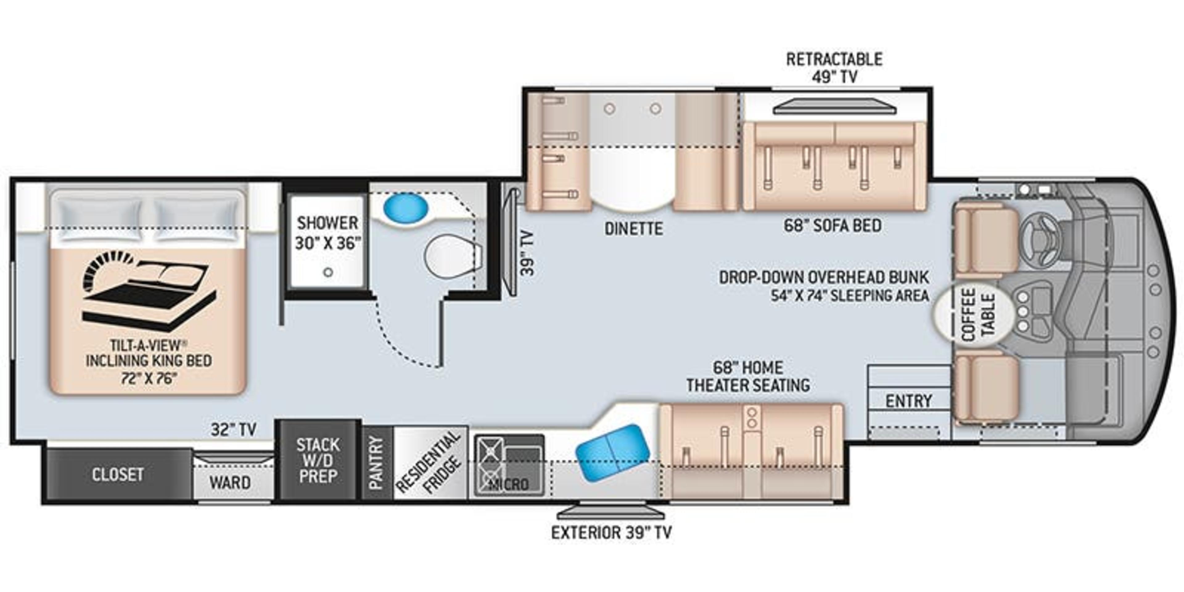
Rear bedroom
Rear Bedroom
MSRP
$207,450
Get a quote
Key facts
MSRP
$207,450
Length
37 ft
Sleeps
8
Find a Thor Motor Coach Challenger 35MQ
See it in person or find a great deal nationwide.
Chat with AI concierge
Want to remember this floor plan?
Save for later
2024
2022
2021
On this page...
Inventory
Find one